Owner Suite Layout
Owner Suite Selections
Custom King Storage Bed
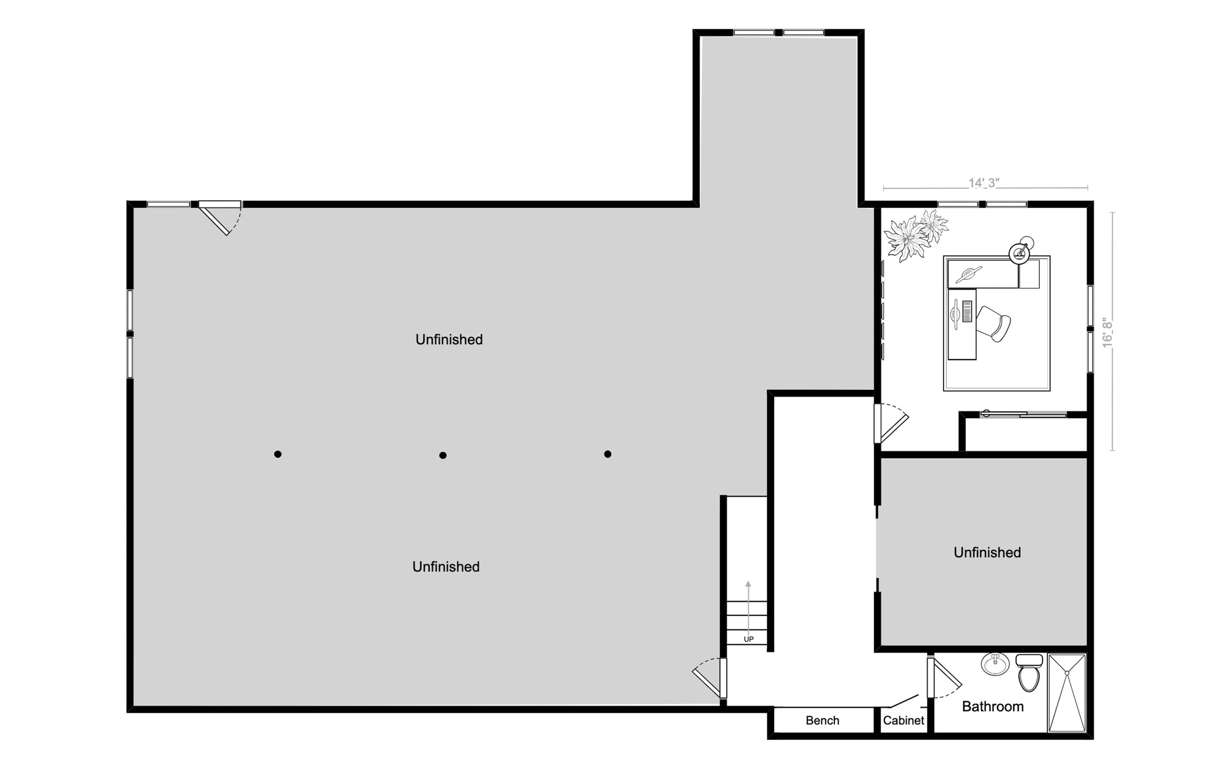
Lower Level Layout - PhasE One
Lower Level Light Schedule - Phase One
Lower Level Trim and Bench Detail
Lower Level Architectural Details
Lower Level Bathroom Selections
Office Layout
Office Selections
Desk Configuration
Desk 60 x 24 x 30h | Desk Return 60 x 24 x 30h | Under Desk File Cabinet 16.5 x 24 x 24.5h | Finish: Golden Brown on Ash| Hardware: Satin Brass
Images and information on this hub indicate design intention only. Not all product images are shown in recommended fabrics and finishes. Individual re-selections by the client may impact overall results.
